Motor Parkway & Blydenburgh Road | Approved 120,000 SF Self-Storage
James Reddis  |  Broker (646) 574-6734 [email protected]
Offering Memorandum
Motor Parkway &
Blydenburgh Road
Islandia, New York
Self-Storage Rendering
Fully Entitled Self-Storage Development Site
Approved Self-Storage Development Site

Overview

Sale Price$3,900,000
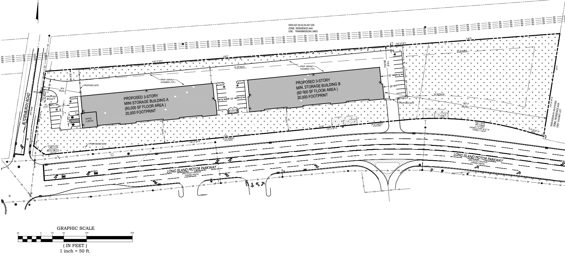
Lot Size+/- 4.5 Acres
Parcel IDSection 27, Block 101, Lot 22 & 25
MunicipalityTown of Islip
ZoningIND-1
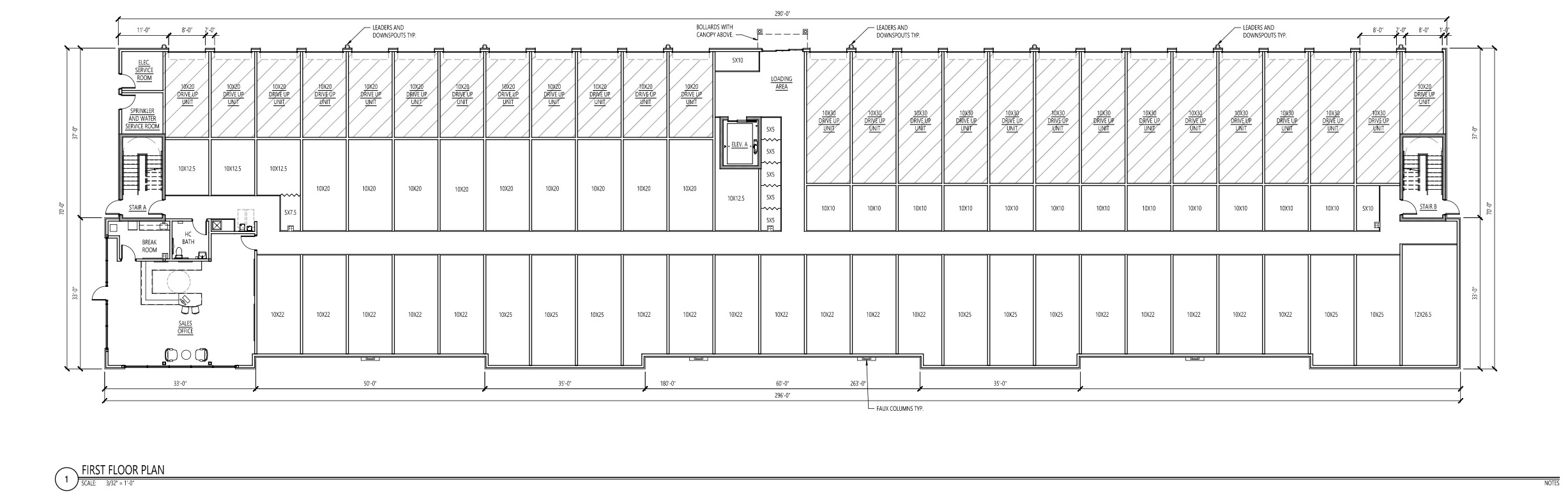
Approved Building Size120,000 SF
Frontage on Motor Pkwy1,100 LF
# of Floors3
# of Buildings2
# of Doors52 Drive-up units
ParkingSurface parking

This fully entitled self-storage development is located at the high-visibility intersection of Motor Parkway and Blydenburgh Road in Islandia, New York, less than 1/4 mile from the Long Island Expressway service road. The 4.55 acre site is entitled for two three-story buildings totaling 120,000 square feet, featuring approximately 1,100 feet of frontage along Motor Parkway.

The planned facility includes a mix of climate-controlled units and ground-level drive-up units with overhead doors, with all site plan approvals in place and included in the sale.

Strategically positioned on the Islandia/Hauppauge border, the property benefits from strong surrounding demand drivers, including a 150-unit luxury apartment rental development less than one mile away that finished construction in 2025, proximity to Jake's 58 Casino, and a planned Trader Joe's distribution facility with potential retail component directly across Motor Parkway.

Site Plan

Interested in This Opportunity? Contact James Reddis Directly.

Approved Self-Storage Development Site

Elevations

South Elevation — Front (Motor Parkway)
South Elevation
West Elevation — Side
West Elevation
East Elevation — Side
East Elevation
North Elevation — Rear
North Elevation
Approved Self-Storage Development Site

Floor Plan

Floor Plan
Approved Self-Storage Development Site

Demographics

2025 3 Miles 5 Miles
Population87,029191,302
Households26,33761,410
Renter Occupied (%)4,768 (18%)10,660 (17%)
Avg HH Income$146,537$155,936
Businesses4,57512,881
Demographics Map
Buck Realty of Long Island Inc.
James Reddis
Broker
Buck Realty of Long Island Inc.
(646) 574-6734 [email protected]

© 2026 Buck Realty of Long Island Inc. All rights reserved.  |  510 Broadhollow Rd, Suite 210, Melville, NY 11747